- 董董:谁来点评下九里香醍这个盘?
- 小石头:地段还行
- 七七妈:性价比高
- 春暖花开:未来升值空间还是有的
- 阿霞:周末一起约看房呀
- 大头明:售楼处美眉不错,哈哈
搜索到条记录
.png)
萍乡九里香醍规划怎么样、九里香醍优缺点、最新房价楼盘分析?今天吉小屋就和大家一起来详细了解一下九里香醍房价、房源、户型、环境、交通等周边配套的相关问题!让购房者对九里香醍有更多了解,挑选到更适合自己的好房子!
选对房、买对房对于每个购房者来说都是非常重要的事,所以买房前都会先了解楼盘区域房价、楼市政策等信息本期推荐位于萍乡安源区的萍乡九里香醍、接下来将介绍九里香醍怎么样、周边配套以及九里香醍优缺点楼盘分析。九里香醍由萍乡市三信物业开发有限公司承建开发,售楼处电话:4007638577转098730,开盘时间:2021-08-31,物业类型为:别墅,住宅,装修状况:毛坯,楼盘产权年限: 联排70年 ,楼盘地址:安源区中环西路与萍麻公路交接处,物业公司:萍乡市乐盛物业服务有限公司,物业费:住宅:以物价局核定价格为准;别墅:以物价局核定价格为准,如果您对九里香醍项目感兴趣想了解,请咨询拨打我们售楼处联系电话。
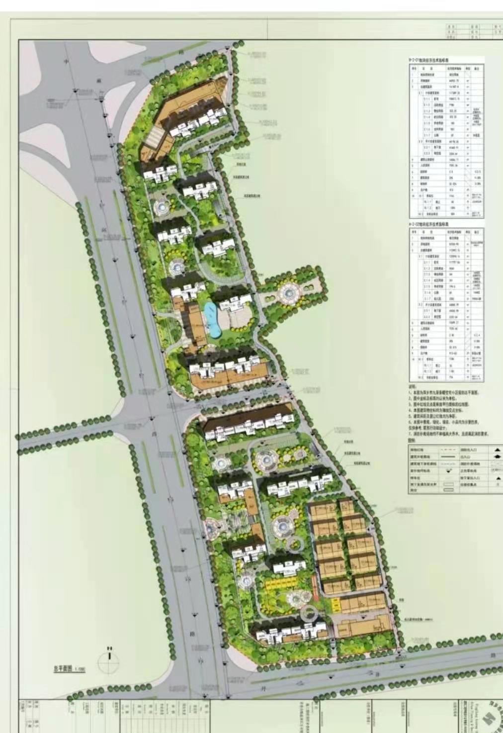
九里香醍项目位于萍乡城西板块,中环西路与宝塔路交界处。项目往东可快速**主城区--城南片区,目前该区域还是全市**主要的农副产品批发集散地,并连通主城区**的综合市场—西门市场。向北途径优山美域可快速抵达中心老城区--南昌百货、步行街,北至320国道可至高铁站、湘东、芦溪。往南连接中环南路至安源区、五陂下。目前项目所处是湘东片区进入主城区的咽喉要道,桐田、麻山、腊市、排上多个乡镇都是从萍麻公路进城。 九里香醍目前已经设计的南北两个地块总占地10万方,建筑面积近50万方,容积率2.5,绿化率30%。现在已设计部分将分两期开发,共建成14栋27层高层建筑和70余户联排别墅,沿街设计近万平米配套商业。户型面积90-150㎡不等,三房、四房、五房、复式均有,满足各年龄阶段刚需及改善需求。
九里香醍房价走势、九里香醍房价多少钱一平方,房价均价:4500元/㎡,同比安源区新房均价5732元/平米,同比安源区二手房均价5547元/平米 ,为你买房投资置业提供参考,下面介绍九里香醍历史房价信息。
记录时间:2021-11-01 ,均价:4500元/平米
记录时间:2021-10-01 ,均价:4500元/平米
查看更多房价信息 >>格局方正,整体面宽与进深比例合适,便于空间改造和家具摆放。采光面为正南向,保证日间室内明亮有光照,且不会受到阳光直晒。日间活动区域远离卧室、书房,休息及工作时不受访客打扰。卧室面积合理,居住舒适自由,有利于业主休息。公摊面积相对合理,符合住宅公摊正常范围,满足日常居住需求。
搜索到条记录